Om oss
Design
Modeller
Kontakt
Forretningsmuligheter
No
En
Om oss
Design
Modeller
Kontakt
Forretningsmuligheter
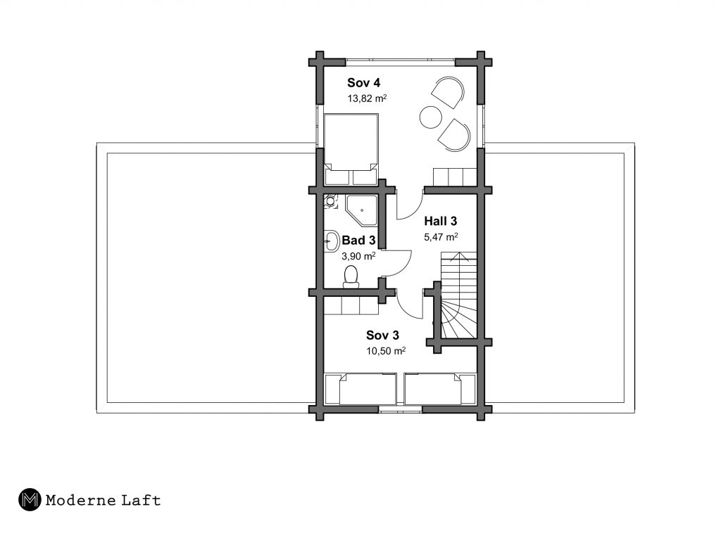
Kristin (BRA 157)
Modeller
»
Moderne stavlaft
» Kristin (BRA 157)
Atgriezties
Show
Kristin (BRA 157)
Parametri
BYA
143,43 m2
BRA
157 m2
Høyde
6 m